Saint-Léonard-d'Aston J0C1M0
Maison de plain-pied | MLS: 23476968
Ici, la lumière enveloppe chaque pièce et crée une ambiance apaisante dès les premiers instants. Une propriété pensée pour la vie de famille avec ses 3 chambres au rez-de-chaussée, offrant confort et simplicité au quotidien. À l'arrière, le parc et l'école deviennent une extension naturelle de la cour -- voir les enfants jouer n'aura jamais été aussi simple. Garage attaché chauffé pour un confort à l'année. Située dans un village en forte croissance, très recherché et offrant plusieurs services, à distance stratégique de Trois-Rivières, Drummondville et Victoriaville. Cette propriété offre bien plus qu'un espace... elle offre un mode de vie.
Inclus : Tous les luminaires et les revêtements de fenêtres, bacs à récupération et poubelle, balayeuse centrale et ses accessoires, four Jennair encastré et le lave-vaisselle.
Exclus : Tous les biens et meubles des vendeurs, tous les électroménagers (sauf le four Jennair encastré et le lave-vaisselle), tout le contenu du garage et du cabanon.
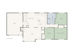
| Chambre | Dimensions | Niveau | Revêtement |
|---|---|---|---|
| Cuisine et Salle à manger | 13.4 x 22.8 P | Rez-de-chaussée | Couvre-sol souple |
| Cuisine et Salle à manger | 13.4 x 22.8 P | Rez-de-chaussée | Couvre-sol souple |
| Salon | 18.0 x 13.4 P | Rez-de-chaussée | Bois |
| Salon | 18.0 x 13.4 P | Rez-de-chaussée | Bois |
| Chambre à coucher | 11.1 x 10.5 P | Rez-de-chaussée | Couvre-sol souple |
| Chambre à coucher | 11.1 x 10.5 P | Rez-de-chaussée | Couvre-sol souple |
| Chambre à coucher | 11.3 x 11.11 P | Rez-de-chaussée | Plancher flottant |
| Chambre à coucher | 11.3 x 11.11 P | Rez-de-chaussée | Plancher flottant |
| Chambre à coucher | 11.3 x 9.4 P | Rez-de-chaussée | Couvre-sol souple |
| Chambre à coucher | 11.3 x 9.4 P | Rez-de-chaussée | Couvre-sol souple |
| Salle de bains | 10.1 x 7.1 P | Rez-de-chaussée | Céramique |
| Salle de bains | 10.1 x 7.1 P | Rez-de-chaussée | Céramique |
| Salle familiale | 29.7 x 11.9 P | Sous-sol | Plancher flottant |
| Salle familiale | 29.7 x 11.9 P | Sous-sol | Plancher flottant |
| Chambre à coucher | 10.9 x 8.7 P | Sous-sol | Plancher flottant |
| Chambre à coucher | 10.9 x 8.7 P | Sous-sol | Plancher flottant |
| Bureau à domicile | 15.1 x 10.9 P | Sous-sol | Tapis |
| Bureau à domicile | 15.1 x 10.9 P | Sous-sol | Tapis |
| Atelier | 9.4 x 13.4 P | Sous-sol | Béton |
| Atelier | 9.4 x 13.4 P | Sous-sol | Béton |
| Salle d'eau | 4.10 x 4.11 P | Sous-sol | Couvre-sol souple |
| Salle d'eau | 4.10 x 4.11 P | Sous-sol | Couvre-sol souple |
| Sous-sol | 6 pieds et plus, Totalement aménagé |
|---|---|
| Garage | Attaché, Chauffé, Simple largeur |
| Stationnement | Au garage, Extérieur |
| Proximité | Autoroute/Voie rapide, Autre, École primaire, École secondaire, Garderie/CPE, Parc-espace vert |
| Toiture | Bardeaux d'asphalte |
| Fondation | Bloc de béton |
| Armoires | Bois |
| Revêtements | Brique |
| Type de fenêtre | Coulissante, Manivelle |
| Salle de bains/salle d'eau | Douche indépendante |
| Mode de chauffage | Eau chaude |
| Équipement disponible | Échangeur d'air, Installation aspirateur central, Thermopompe murale |
| Énergie pour le chauffage | Électricité |
| Foyers-poêles | Foyer au bois, Poêle à bois |
| Système d'égouts | Municipal |
| Approvisionnement en eau | Municipalité |
| Allée | Pavé uni |
| Fenêtres | PVC |
| Zonage | Résidentiel |