Sainte-Sophie-de-Lévrard G0X3C0
Maison de plain-pied | MLS: 23419092
Tombez sous le charme de ce magnifique plain-pied à Sainte-Sophie-de-Lévrard! Espace, confort et tranquillité s'unissent dans cette propriété offrant 6 chambres, 2 salles de bain et une chaleureuse aire ouverte baignée de lumière. Les planchers chauffants invitent à la détente, tandis que le vaste garage double détaché comblera les passionnés de projets. Le tout sur un terrain verdoyant de plus de 25 000 pieds carrés, où la paix et la nature règnent. Contactez-nous dès maintenant pour planifier votre visite!
Inclus : Tous les luminaires; Tous les revêtements de fenêtres; Lave-vaisselle; Petit bac à récupération et bac à poubelle noir; Rack à télévision de la chambre des maîtres; Balayeuse centrale et ses accessoires; Thermopompe et sa manette; Bancs de l'ilôt.
Exclus : Tous les biens et meubles du vendeurs; Tous le contenu du garage dont les étagères; Tous les électroménagers sauf ceux mentionné dans les inclusions; Gros bac bleu à récupération; Meubles (2) (vissé au mur) du salon; Rack et télévision du salon; Système de son du salon; Foyer électrique du salon; Télévision de la chambre des maîtres; Bois pour le chauffage dans le garage.
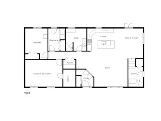
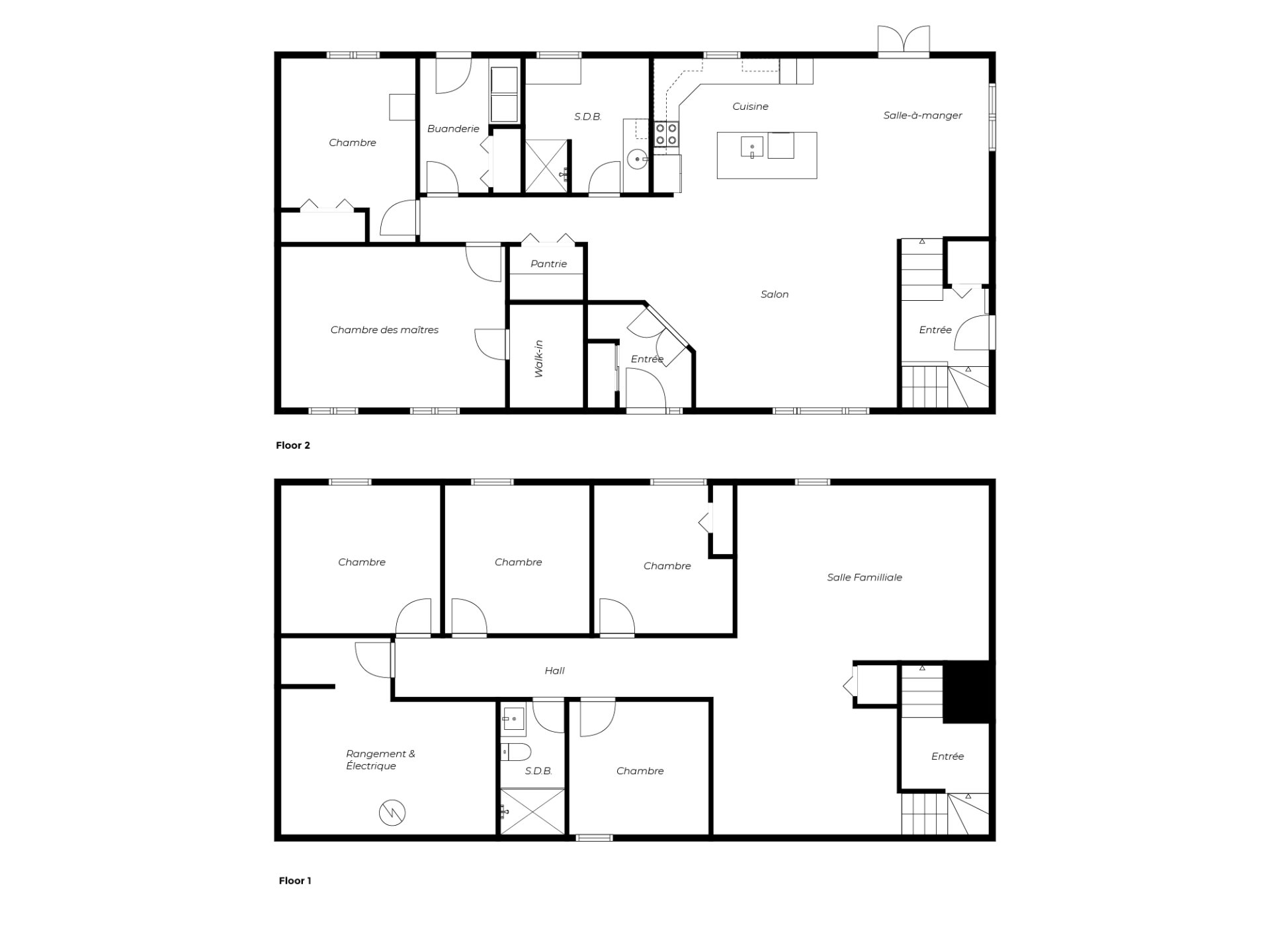
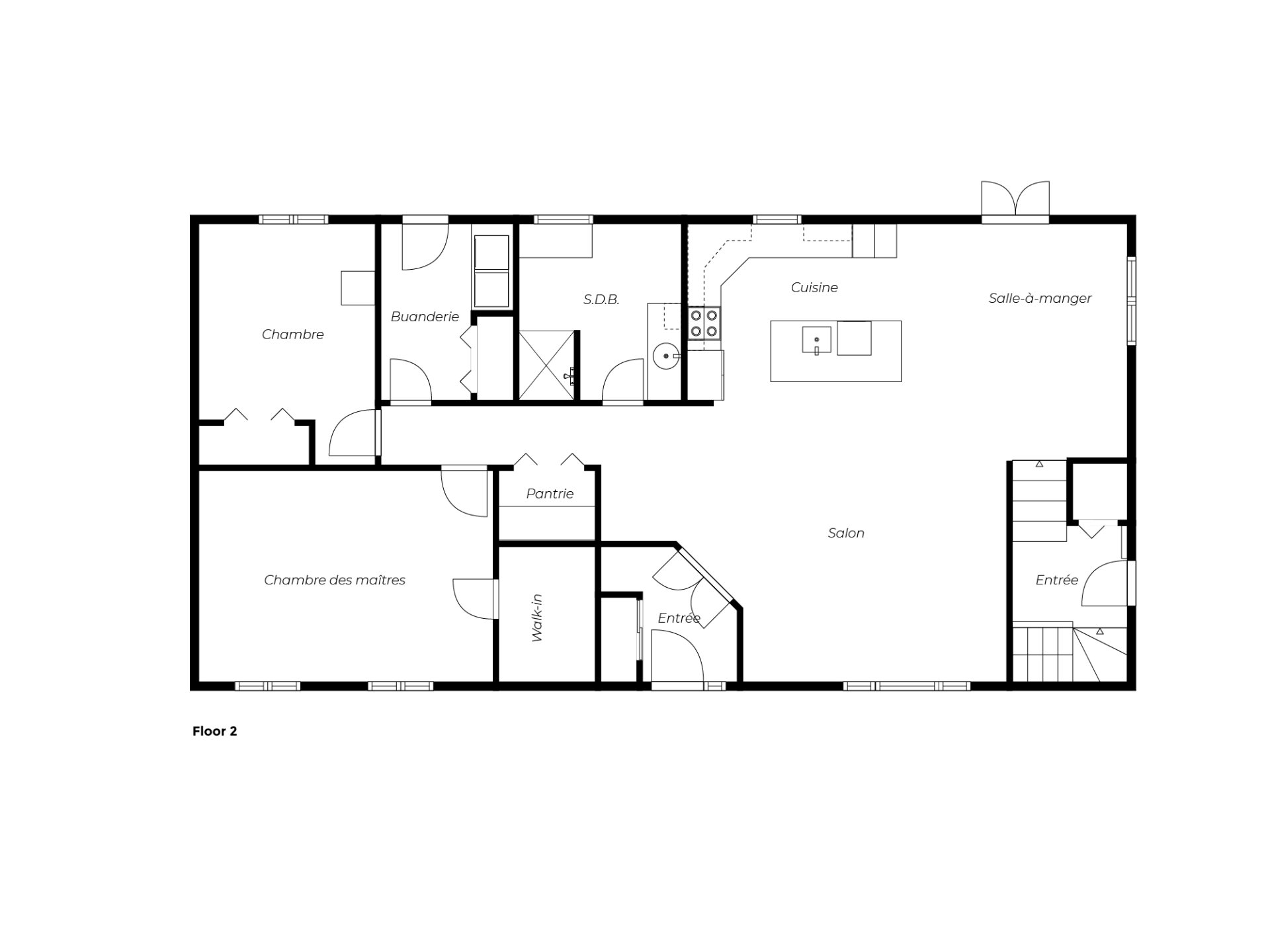
| Chambre | Dimensions | Niveau | Revêtement |
|---|---|---|---|
| Hall d'entrée | 6.1 x 5.0 P | Rez-de-chaussée | Bois |
| Salle à manger | 12.1 x 13.0 P | Rez-de-chaussée | Bois |
| Cuisine | 13.0 x 10.1 P | Rez-de-chaussée | Autre |
| Salon | 15.1 x 13.1 P | Rez-de-chaussée | Bois |
| Hall d'entrée | 7.1 x 5.1 P | Rez-de-chaussée | Céramique |
| Salle de bains | 10.0 x 10.0 P | Rez-de-chaussée | Autre |
| Chambre à coucher principale | 17.0 x 12.0 P | Rez-de-chaussée | Bois |
| Penderie (Walk-in) | 9.1 x 6.0 P | Rez-de-chaussée | Bois |
| Chambre à coucher | 10.0 x 11.1 P | Rez-de-chaussée | Bois |
| Salle de lavage | 10.0 x 5.0 P | Rez-de-chaussée | Céramique |
| Salle familiale | 25.1 x 18.2 P | Sous-sol | Autre |
| Chambre à coucher | 10.1 x 11.1 P | Sous-sol | Autre |
| Chambre à coucher | 10.3 x 11.1 P | Sous-sol | Autre |
| Salle de bains | 10.3 x 4.9 P | Sous-sol | Céramique |
| Chambre à coucher | 10.1 x 11.2 P | Sous-sol | Autre |
| Chambre à coucher | 11.0 x 10.8 P | Sous-sol | Autre |
| Atelier | 15.0 x 16.7 P | Sous-sol | Béton |
| Sous-sol | 6 pieds et plus, Totalement aménagé |
|---|---|
| Zonage | Agricole, Résidentiel |
| Stationnement | Au garage, Extérieur |
| Particularités | Aucun voisin à l'arrière |
| Mode de chauffage | Autre |
| Toiture | Bardeaux d'asphalte |
| Fondation | Béton coulé |
| Armoires | Bois |
| Garage | Chauffé, Détaché |
| Type de fenêtre | Coulissante, Manivelle |
| Allée | Double largeur ou plus, Non pavée |
| Salle de bains/salle d'eau | Douche indépendante |
| Équipement disponible | Échangeur d'air, Installation aspirateur central, Thermopompe murale |
| Proximité | École primaire, Garderie/CPE |
| Énergie pour le chauffage | Électricité |
| Système d'égouts | Municipal |
| Approvisionnement en eau | Municipalité |
| Topographie | Plat |
| Fenêtres | PVC |
| Revêtements | Vinyle |